Lot 124 - Mondercange
1.262.000 €
Lieu : Mondercange
DPE (Diagnostique de Performance Energétique) A
Classe d'isolation thermique B
GES (Gaz à Effet de Serre) A
Etat du bien : Neuf
Description
-
Nouveau Lotissement "Kummerhéicht" à Mondercange
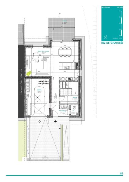
Le lot 124 se compose comme suit :
Réz-de-chaussée
- séjour/salle à manger/cuisine
- réserve
- WC
- garage pour 1 voiture
- terrasse
- jardin
- 1 emplacement extérieur
Etage 01
- hall
- suite parentale avec dressing avec salle de douche
- local technique/buanderie
- salle de bain
- 3 chambres à coucher
Prix Lot 124 : 1.312.000,-€ TVA 17 % (investissement)
SURFACES :
terrain : 4.80 ares
habitable : +- 164 m2
non-habitable: +- 10m2
non-chauffée : +- 22m2
Classe énergétique: A/B/A
Pour plus d'informations veuillez contacter :
Fischbach Realtors & Developers
immo.fischbach@fischbach.lu
+352 45 71 30 1
Situation & Environnement
Le nouveau lotissement «Kummerhéicht» voit le jour à l’est de Mondercange, dans un cadre paisible entre la Rue de Pontpierre, la Rue de Reckange (C.R. 172) et la Rue de Neudorf. Situé en lisière du village, entouré de vastes espaces verts et jusqu’ici utilisé comme pâturage, le site est un lieu idéal pour celles et ceux qui recherchent un cadre de vie proche de la nature tout en bénéficiant d’une excellente accessibilité.
Mondercange est une commune familiale et agréable à vivre, profitant d’une situation stratégique : entre Luxembourg-ville, Esch-sur-Alzette et la frontière française, les destinations importantes sont accessibles en quelques minutes.
Mobilité & Transports
Le quartier est parfaitement intégré au réseau de transports :
Accès routiers: Connexions rapides vers Luxembourg-ville, Esch-sur-Alzette, Reckange-sur-Mess et Thionville (France) grâce à la proximité des axes principaux.
Transports publics: Trois arrêts de bus à proximité immédiate – «Kummerhéicht» (Rue de Pontpierre), «Neidirfchen» (Rue de Neudorf) et «Oswald» (carrefour Rue Neuve / Rue de Reckange). Les lignes TICE 17 et RGTR 205 vous relient directement à Esch-sur-Alzette, Pontpierre ainsi qu’aux gares de Luxembourg-ville et d’Esch-sur-Alzette.
Bus scolaires: Les lignes de bus sont également utilisées pour le transport scolaire – idéal pour les familles.
En voiture: La proximité des autoroutes garantit des trajets rapides dans toutes les directions.
Éducation & Accueil
Mondercange propose une offre éducative complète:
Deux écoles fondamentales à Mondercange et Pontpierre, facilement accessibles par bus scolaire (arrêt le plus proche: «Kummerhéicht»).
Enseignement secondaire et écoles internationales accessibles rapidement à Esch-sur-Alzette, Esch-Belval et Luxembourg-ville.
Structures d’accueil et crèches présentes dans la commune et les environs.
Commodités & Vie quotidienne
Le centre de Mondercange et ses alentours regroupent tout le nécessaire pour le quotidien:
Commerces: Supermarchés, boulangerie, café, bureau de poste, pharmacie et autres services essentiels sont rapidement accessibles.
Services: Police, banques, médecins et autres infrastructures importantes se trouvent sur place.
Marchés hebdomadaires et producteurs locaux proposent des produits frais de la région.
Loisirs, Culture & Sports
Mondercange et ses environs offrent de nombreuses possibilités pour un quotidien actif et varié:
Sports & détente: Complexe sportif moderne, terrains de football, courts de tennis, pistes cyclables et sentiers de randonnée.
Culture: Centres culturels dynamiques («Beim Nëssert» à Bergem et le Centre Culturel Arthur Thinnes) avec des événements pour petits et grands.
Nature: L’environnement se prête parfaitement aux promenades, au jogging ou aux balades à vélo à travers champs et forêts.
Foetz – Le paradis du shopping et des loisirs à deux pas
À seulement quelques minutes, Foetz offre un large éventail de possibilités :
Centres commerciaux: Le centre E.Leclerc propose un vaste choix d’alimentation, mode, électronique et plus encore.
Restauration: De nombreux restaurants, cafés et snacks vous invitent à faire une pause gourmande.
Loisirs: Espaces de jeux intérieurs, salles de sport et activités variées pour toute la famille.
Économie: Plus de 200 entreprises et de nombreux emplois dans la zone industrielle de Foetz.
Esch-Belval – Vie urbaine, culture & événements
À seulement quelques minutes, Esch-Belval est l’un des quartiers les plus dynamiques du pays:
Rockhal: La plus grande salle de concerts et d’événements du Luxembourg, accueillant des stars internationales et une programmation éclectique.
Belval Plaza Shopping Center: Plus de 100 boutiques, cafés, restaurants et un cinéma pour une expérience urbaine et divertissante.
Culture & éducation: Campus universitaire, expositions et architecture innovante font d’Esch-Belval un pôle culturel et un lieu phare de l’innovation.
Santé
Médecins et pharmacies disponibles directement à Mondercange et dans les localités voisines.
Hôpitaux accessibles rapidement à Esch-sur-Alzette et Luxembourg-ville.
Qualité de vie & Développement durable
Le quartier «Kummerhéicht» est synonyme d’habitat moderne et durable:
161 logements sur plus de 10 hectares, dont 143 maisons unifamiliales (individuelles, jumelées et en rangée), 12 unités dans des maisons jumelées, ainsi qu’une résidence moderne de 6 appartements.
Espaces verts, aires de jeux et rues résidentielles calmes garantissent une qualité de vie élevée et un cadre adapté aux familles.
Développement durable et intégration harmonieuse dans l’environnement sont au cœur du projet.Pour plus d'informations veuillez contacter :
Voir tout
Fischbach Realtors & Developers
immo.fischbach@fischbach.lu
+3524571301 Caractéristiques détaillées
-
Intérieur
Nombre de chambre(s) : 4
Hall d'entrée : 1
Salle de bains : 1
Douche : 1
WC séparé : 1
Buanderie : 1
Extérieur
Terrasse : 1
Surface de la terrasse : 14.92 m2
Énergie / Chauffage
Type de chauffage : Pompe à chaleur
Appareil de chauffage : Au sol
Système pour chauffer l'eau : Pompe à chaleur
Ventillation double flux : oui
Triple vitrage : oui
Autres
Garage(s) : 1
Parking ouvert : 1
Alarme : oui
Vidéophone : oui
- Détail des lots
-

















